CASUAL ? 貸別荘

Reluxグレード

しつらえ、お料理、おもてなし、
その宿ならではの体験価値や魅力などの審査項目
から、Relux独自の基準で宿泊施設を5つのグレードに分けてご紹介しています

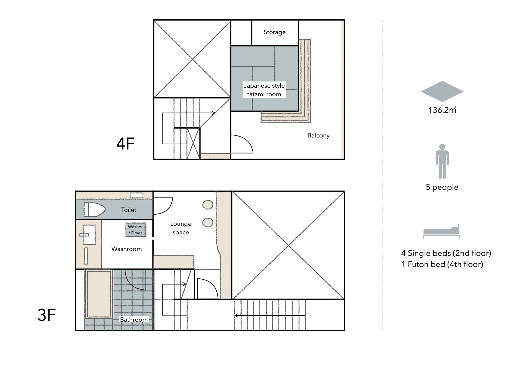
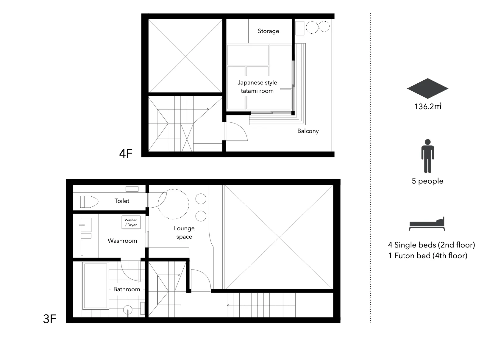
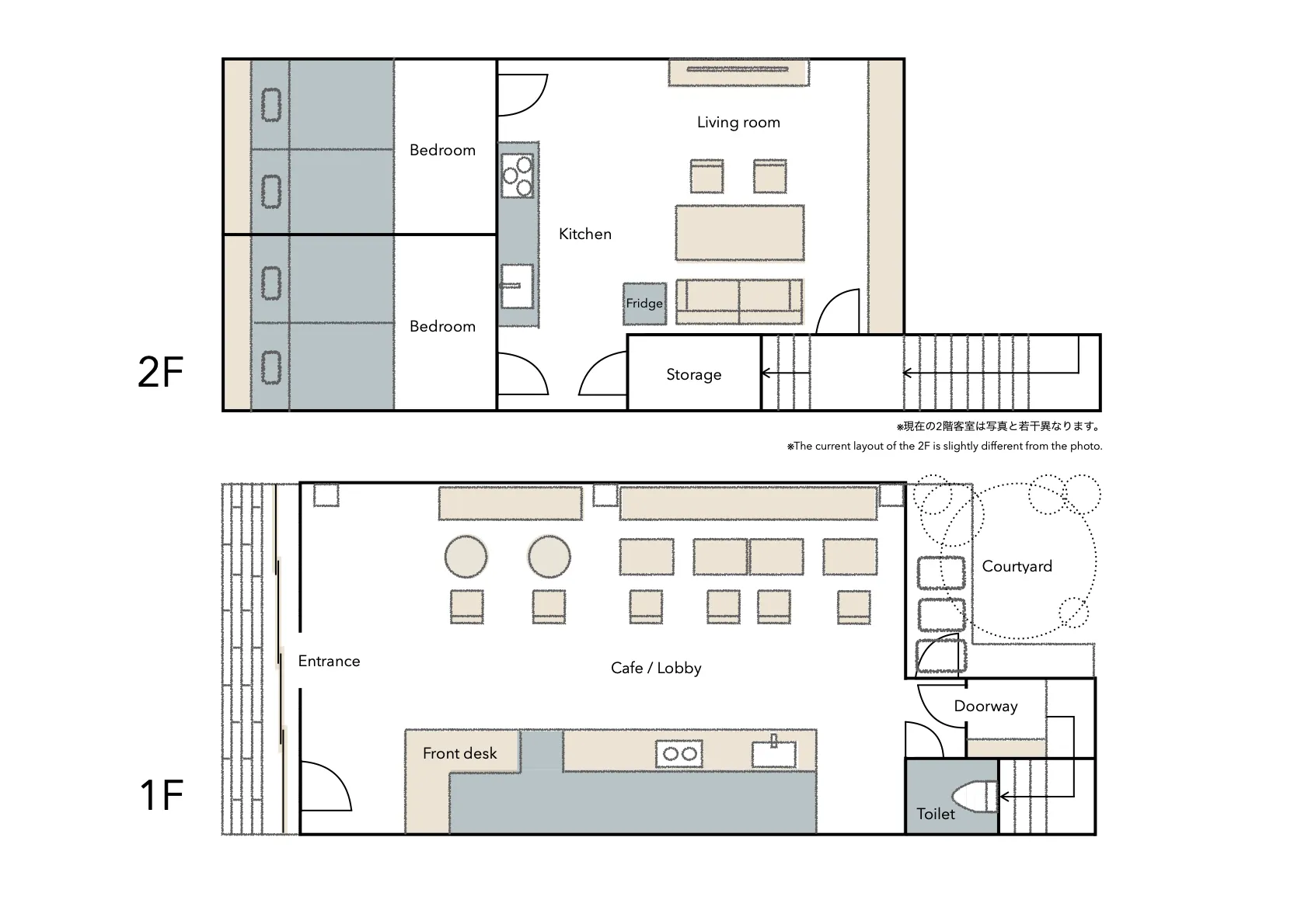
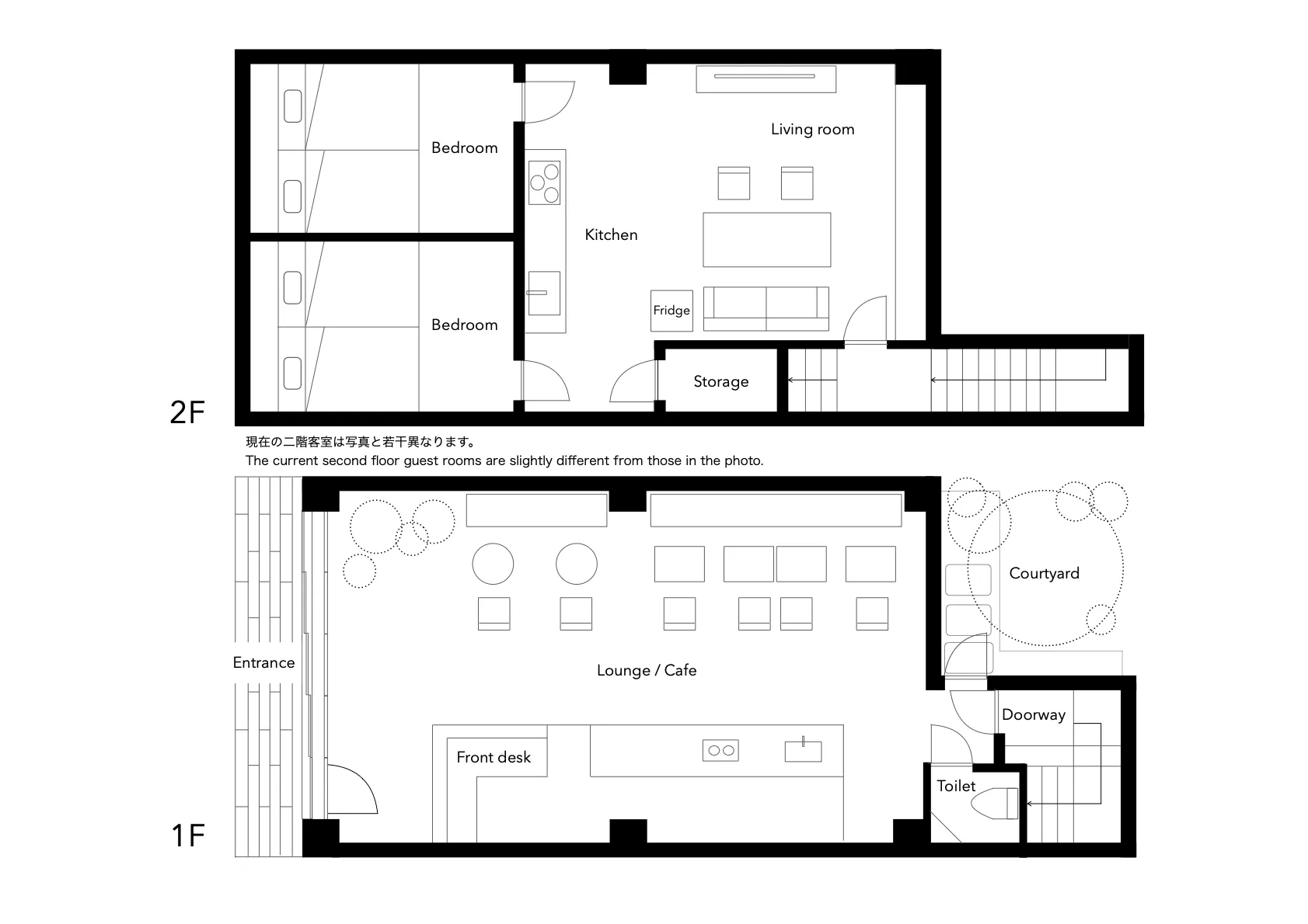
2254

京都府京都市東山区宮川筋2丁目254